View the embedded image gallery online at:
https://www.grata-eco-house.fr.cp52712.cloudhosting.lv/proekty/proekty-thw/thw-1#sigProId0f58f16f6e
https://www.grata-eco-house.fr.cp52712.cloudhosting.lv/proekty/proekty-thw/thw-1#sigProId0f58f16f6e
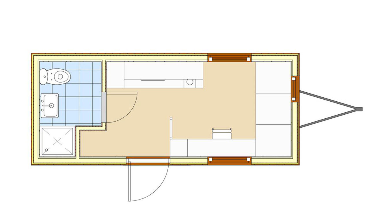
Maison sur roues 1
| Espace habitable | 15,7 m2 |
| Longueur | 6,12 m |
| Largeur | 2,56 m |
| Lits | 2 |
| Prix à partir | 24990,00 EUR |
Plus des informations sur le téléphone:
+371-670-16-500

